Votre projet : Installation avec baignoire
Installation, sous la baignoire, d’Isotanche et de son système d’étanchéité raccordé directement sur son siphon de sol à haut débit intégré. Ultérieurement et en cas de besoin, cette solution permet donc l’aménagement d’une douche accessible (à l’italienne) sans qu’il soit nécessaire de procéder à des travaux de gros oeuvre ainsi que le stipule le législateur.
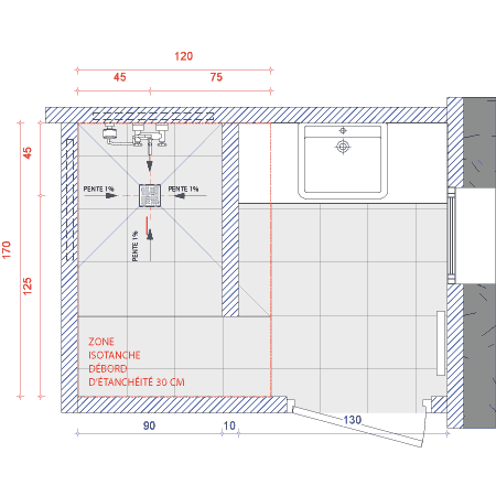
1 / Installation avec baignoire
Siphon de sol Isotanche excentré équipé d’un manchon de raccordement de baignoire.
2/ Principe de modification ultérieure pour aménagement d’une douche accessible
Siphon de sol Isotanche excentré équipé d’un manchon de raccordement de baignoire.
Isotanche Classic Pro NF de chez LAZER. Avec feuille d’étanchéité monté en usine et siphon de sol rotaflux avec débit de 75l/mn orientable à 360°, manchon en PVC à rotule orientable, prise pour raccordement d’évacuation secondaire, 4 pieds réglables pour ajustement de la planéité et de la hauteur, 2 réhausses de grille.
Dimension et emplacement du siphon de sol à préciser.
Votre projet : Installation avec douche
Installation d’Isotanche et de son système d’étanchéité, raccordé directement sur son siphon de sol à haut débit intégré permettant la réalisation immédiate d’une douche à l’italienne, extra plate, esthétique et facile d’accès, en lieu et place d’une douche traditionnelle.
1/ Installation avec douche
Siphon de sol Isotanche excentré
2/Principe de modification ultérieure pour aménagement d’une douche accessible
Siphon de sol Isotanche excentré
Isotanche Classic Pro NF de chez LAZER. Avec feuille d’étanchéité monté en usine et siphon de sol rotaflux avec débit de 75l/mn orientable à 360°, manchon en PVC à rotule orientable, prise pour raccordement d’évacuation secondaire, 4 pieds réglables pour ajustement de la planéité et de la hauteur, 2 réhausses de grille.
Dimension et emplacement du siphon de sol à préciser.







